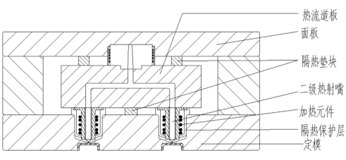
隔热构造温控首先要做的就是进行保温处理,热流道上始终存在着热辐射问题。在没有安装绝缘层使其直接接触的情况下,热流道板与模板、热射嘴与定模之间存在热与冷的接触,热流道板上的热量传递给模板和定模。热通道很难维持所期望的温度,因此加热元件必须加大功率,从而造成能源浪费。所以需要进行保温处理,保温方式最常见的是空气保温和隔热材料保温,图中的隔热垫和保温保护层就是隔热材料保温。保温材料是指导热系数低的材料,如石棉板,陶瓷等。在热流道内,两种方法可同时使用。热流道浇注系统采用这两种保温方式,可以有效地防止热量损失,但仍不能完全防止热量损失。

温度控制。
为确保热流道温度不变,需要一套温度控制系统,以使热流道温度始终保持在所需的温度范围内。大多数的温控系统采用电阻式温度传感器和热电偶温度传感器进行温度测量。两者均属于接触式传感器,因此直接安装在图中的加热元件上,目前最常用的温度控制形式为通断控制。在加热元件上的传感器测得的温度低于所需温度时,加热元件的电源通电加热;在测得的温度高于所需温度时,电源完全断开。而采用统一断控制对热流道的加热和冷却都需要一定的时间,即控制器将预期加热到所需的温度时间与实际温度到达所需的温度时间存在一定的延迟,控制器将将将中断所需的时间相同。这样的延迟是不能确定的。
